目次
権利変換の処分の公告
本組合の施工地区内における権利変換計画について、令和7年12月5日付け静岡県都景第199号により、静岡県知事の認可を受けましたので、都市再開発法第86条の規定により、下記のように権利変換の処分の公告をします。
第一種市街地再開発事業の名称
岳南広域都市計画事業 富士駅北口第一地区第一種市街地再開発事業
施行者の名称
富士駅北口第一地区市街地再開発組合 理事長 大石 眞行
事務所の所在地
静岡県富士市富士町6番2号
権利変換計画に係わる施行地区又は工区に含まれる地域の名称
[宅地]
静岡県富士市本町
20番1、20番2、20番3、20番4、20番5、20番6、20番7、21番、22番、544番、
545番、546番、547番、548番、549番、550番、551番、552番、553番、554番、
555番、556番、557番、558番、559番、560番、561番、562番、563番、564番、
565番、566番、567番、568番、569番、570番、571番、572番、573番、574番、
575番、576番、577番、578番、579番、580番、581番、582番、583番、584番
[公共用地]
静岡県富士市本町
590番の一部、596番の一部、597番の一部、598番の一部、599番、600番、601番、
602番、603番
権利変換期日
令和7年12月12日
権利変換の認可を受けた年月日
令和7年12月5日
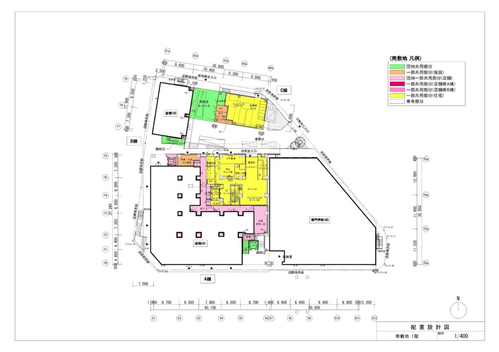
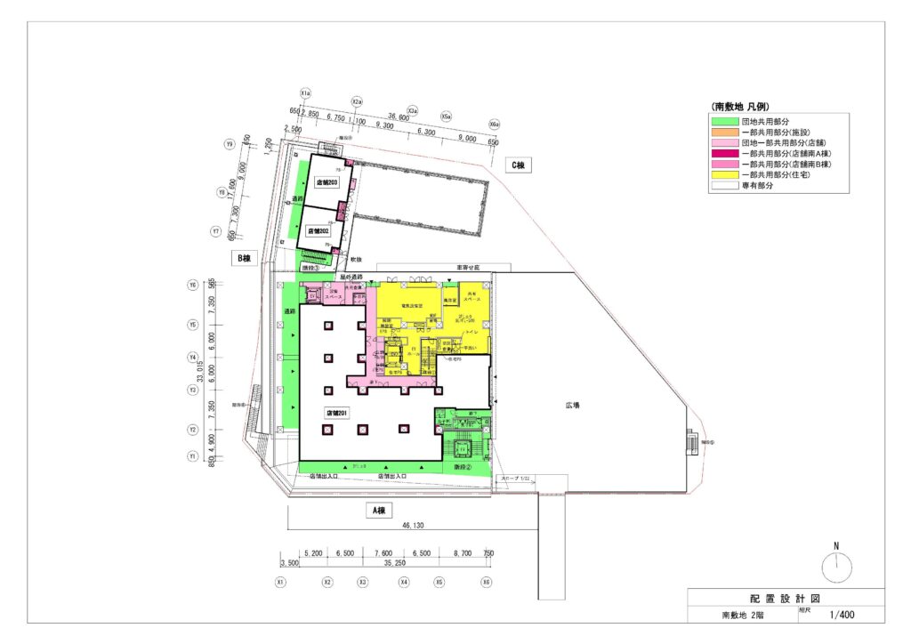
南敷地配置設計図




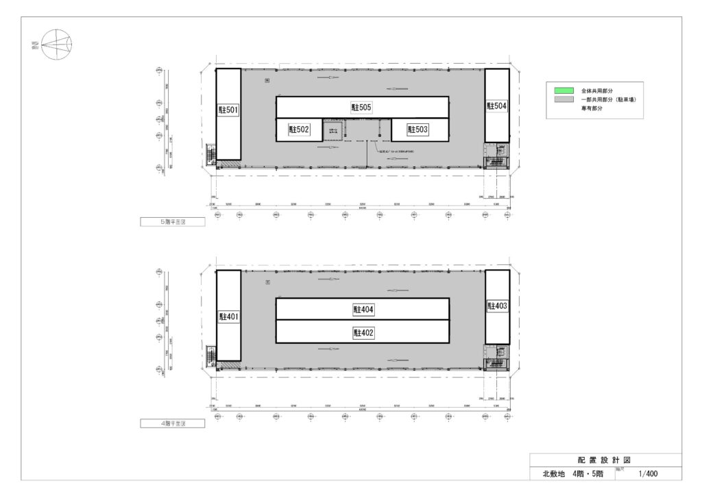
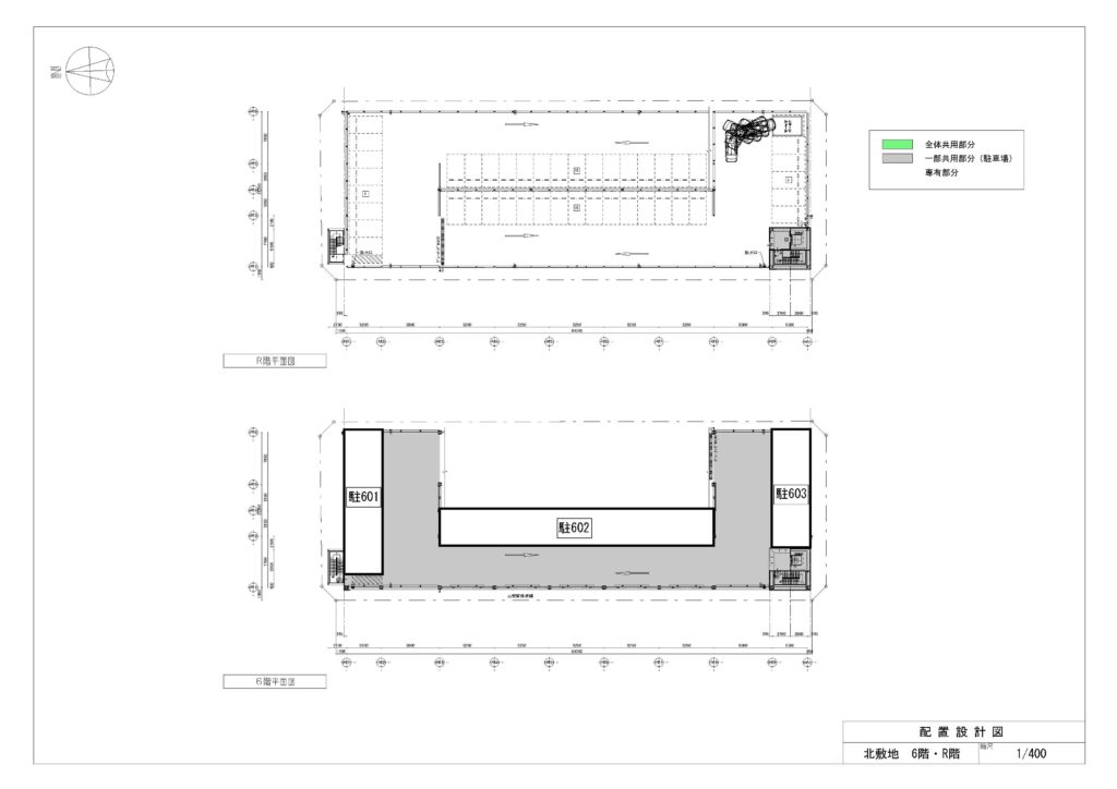
北敷地配置設計図






